Homepage FMG - Fassaden Konstruktionsbüro
FMG building construcion GbR
04192-9054088
Direktkontakt
×
Home
Projekte
Referenzen
Kontakt
Partner/Kunden
Impressum
Datenschutzerklärung
FMG-bc GbR
×
Home
Projekte
Referenzen
Kontakt
Partner/Kunden
Impressum
Datenschutzerklärung
Direkt zum Seiteninhalt
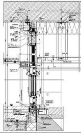
Aluminium-Glas-Blech...
Wir erstellen Ihre Genehmigungsplanung oder Leitdetails...
Von 1997 bis 2007 bei
Dobler Metallbau angestellt
und seit 2007 als eigenständiges Planungsbüro
auf dem Markt.
Projekte
Johann Kontor Hamburg
Johann Kontor Hamburg
Johann Kontor Hamburg
Johann Kontor Hamburg
Johann Kontor Hamburg
Johann Kontor Hamburg
Zurück zum Seiteninhalt
Um diese Website nutzen zu können, aktivieren Sie bitte JavaScript.